Portfolio

Blk 717 Clementi west St 2

Blk 717 Clementi west St 2

5 room resale HDB

BLK 717 Clementi West St 2

Design Concepts : Modern luxury
Ceiling Layout Plan
Living Hall
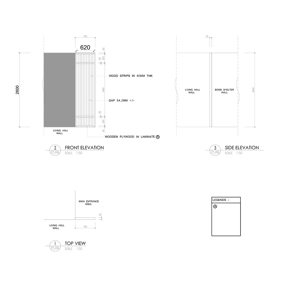
Master Room Wardrobe
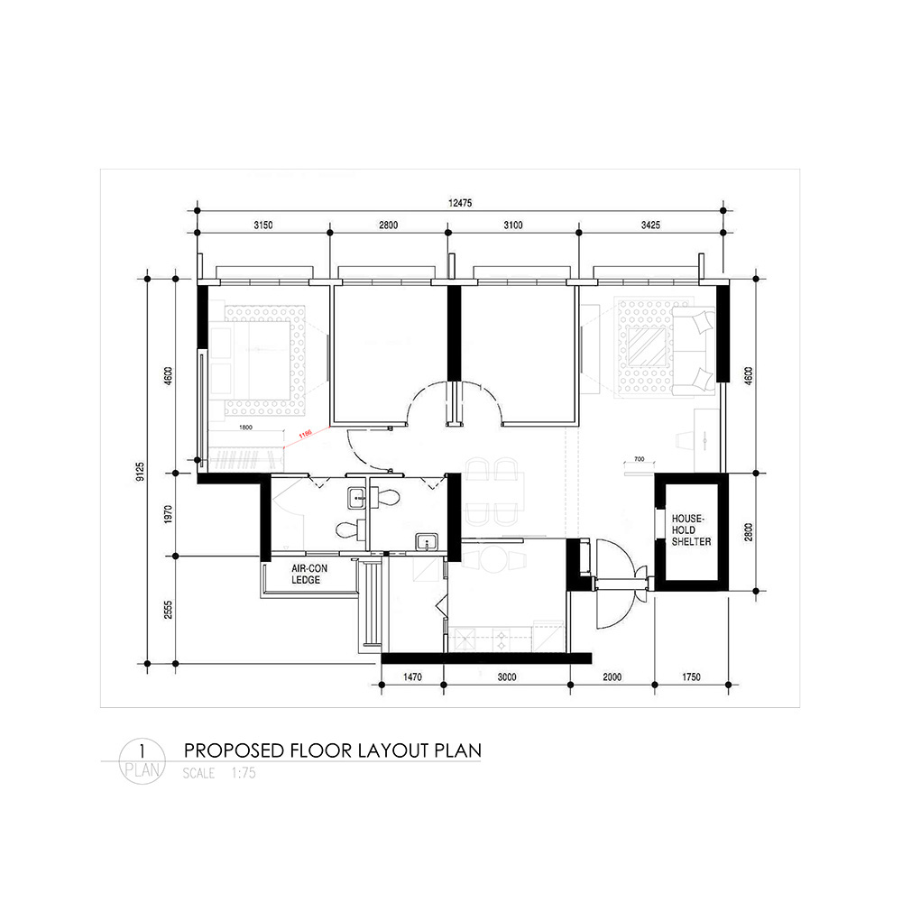
Floor Layout
Image

A.Simplify Design is a premier Singapore reno company, providing interior design and renovation services that assure you’re in the right minds and the right place.

Follow us at :

Contact Info

Office: 124F Tembeling Road Singapore 423623
Factory/ Showroom: 101 Woodlands Avenue 12, #06-15 & #06-16, Singapore 737719