Portfolio

Blk 90B JALAN SATU

Blk 90B JALAN SATU

JALAN SATU

Blk 90B JALAN SATU

Design Concepts : Natural Materials
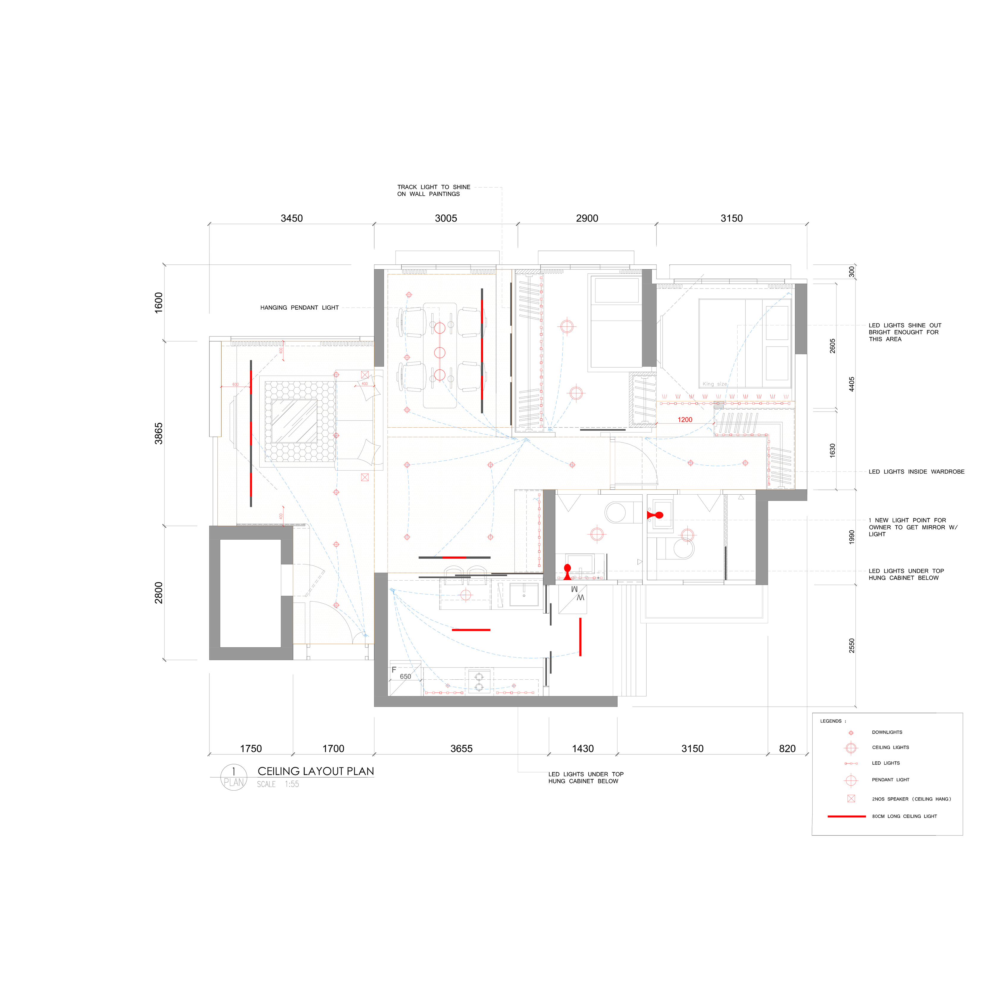
Ceiling Layout Plan
Children Wardrobe
Common Toilet
Counter Cabinet
Custom Made Dining Study Table
Dining Storage Cabinet
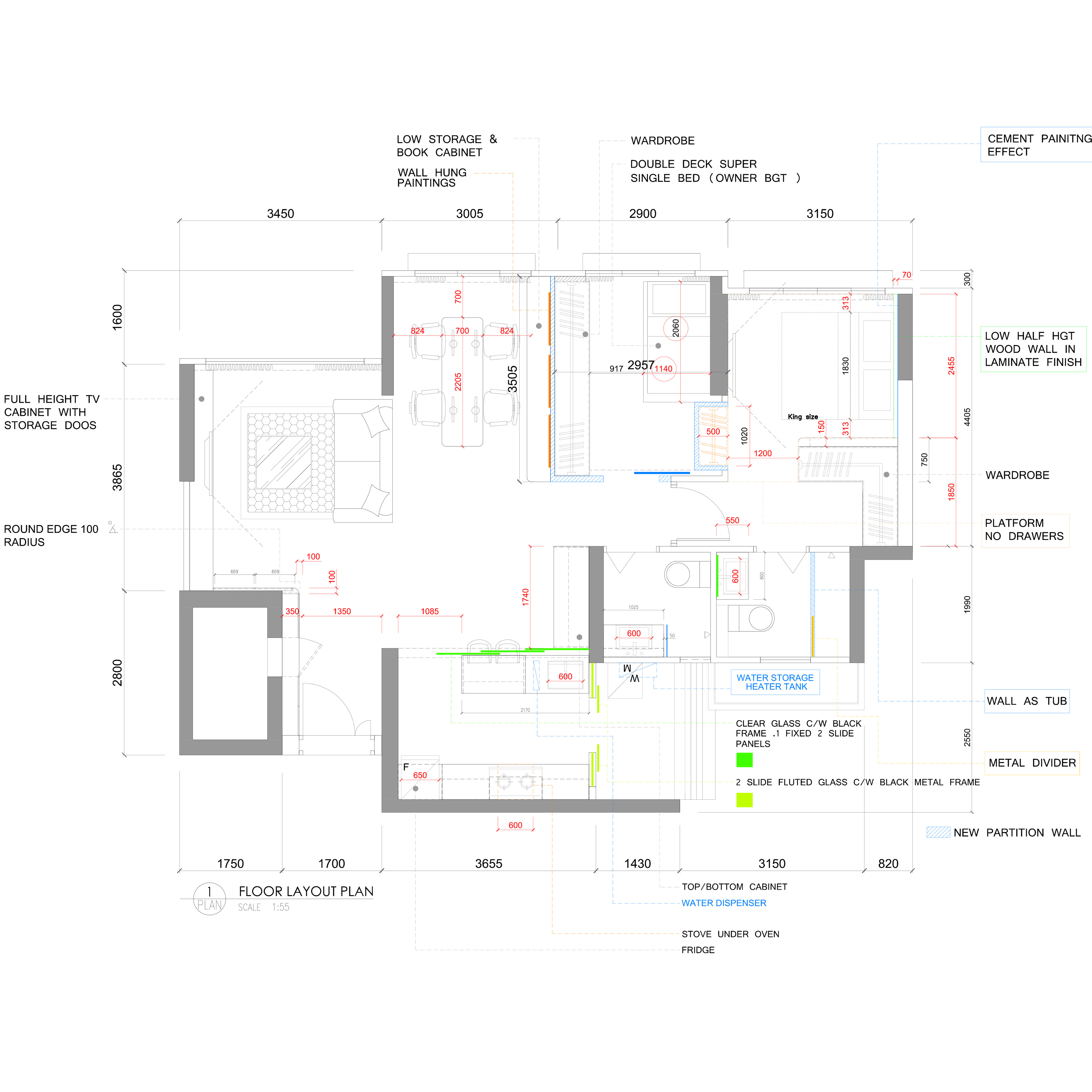
Floor Layout Plan
Kitchen Cabinet
Master Side Wardrobe
Master Toilet
Master Wardrobe
TV Console Cabinet
Image

A.Simplify Design is a premier Singapore reno company, providing interior design and renovation services that assure you’re in the right minds and the right place.

Follow us at :

Contact Info

Office: 124F Tembeling Road Singapore 423623
Factory/ Showroom: 101 Woodlands Avenue 12, #06-15 & #06-16, Singapore 737719